菜单产品中心Product center
塑胶模具配件
您的位置:赢博yingbo(中国) → 产品中心 → 塑胶模具配件
产品说明
产品特点:
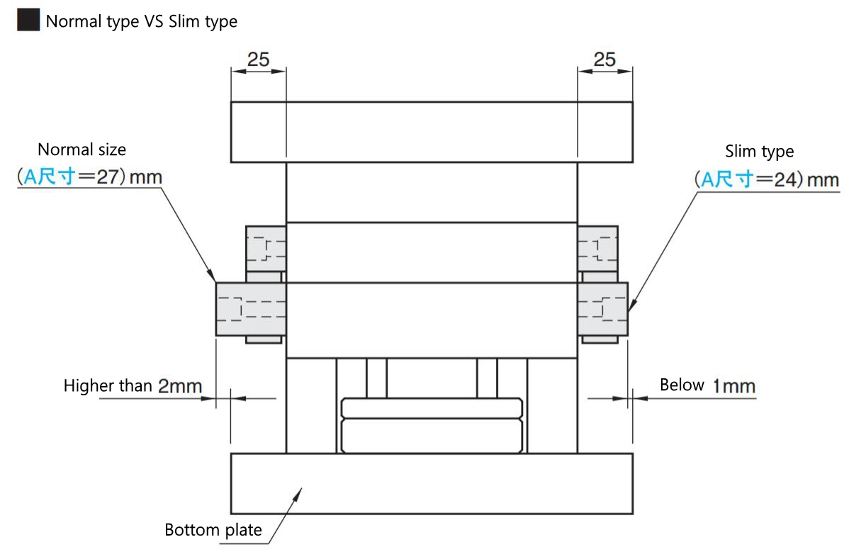
MISUMI标准款式。
碟形弹簧,内部滚轮以及卡轮的组合,能使模具的开合具有良好的平衡性。
滚轮的旋转能够较好的防止偏心磨损的发生。
锁紧套为上下对称性,所以如有磨损可以倒置安装再次使用。
锁紧套的背面有避空位,所以模板如有台阶时也可以使用。
本品有多种规格,可根据模具大小以及承重来选择使用。
每个模具至少需要同时使用两套,两边对称使用。
为了适应一些高温模具,我们同时还有耐高温款式可供选择。

















0755-2807 1608